

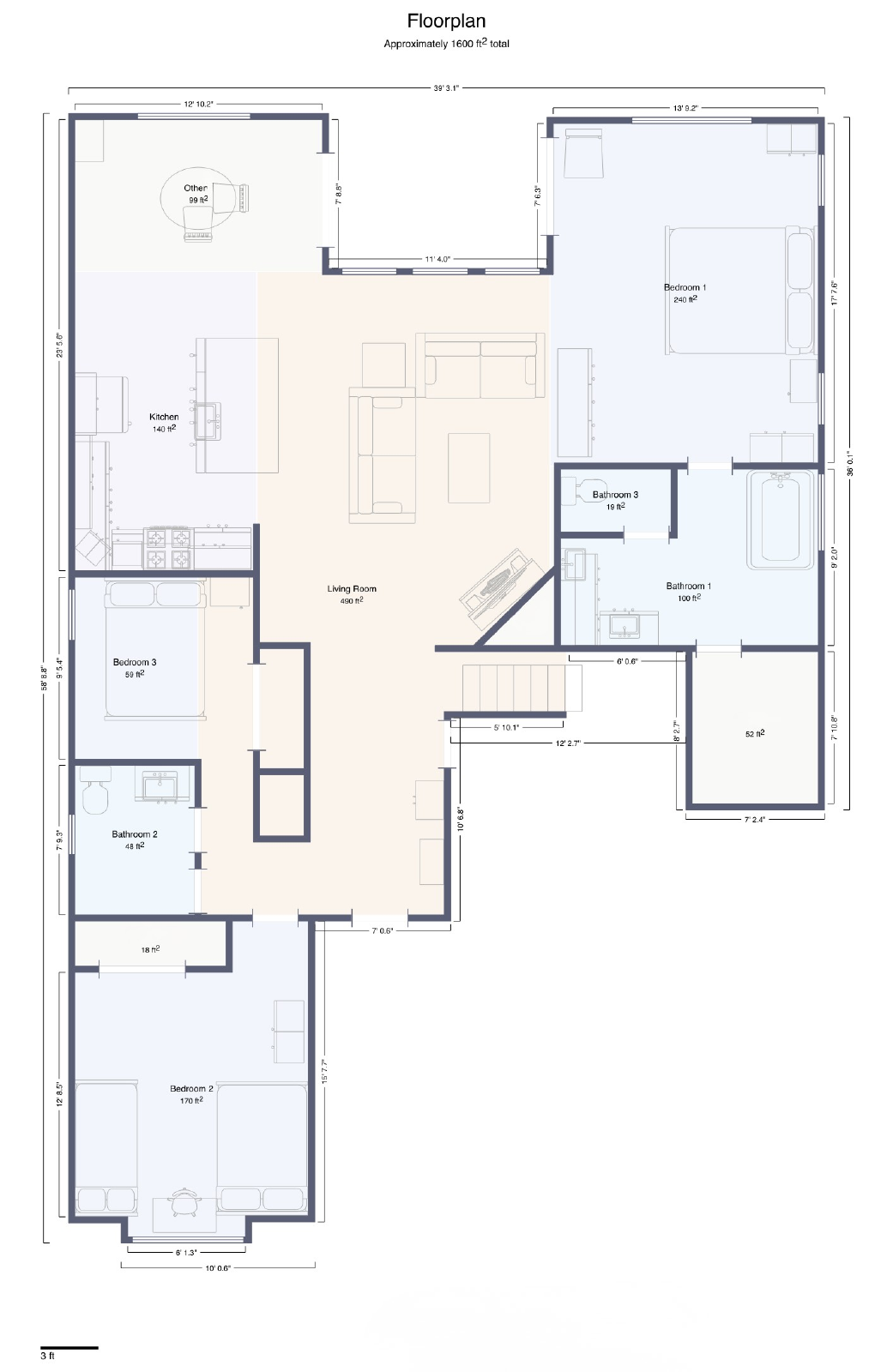
Located within the desirable Woodlake at Lords Creek community, this spacious unfurnished home has over 2,000 sq. Enter into the foyer with distinguished coffered ceiling; engineered wood flooring through the main living areas and carpet in the bedrooms. The open concept living space features a corner gas log fireplace and flows seamlessly into the kitchen and dining room. The kitchen is equipped with stainless steel appliances and a large center island. The large main suite is complete with a tray ceiling, generous walk-in closet, a garden tub, double vanity, and separate shower. Through the main bedroom there is access to a screened porch, overlooking the fenced yard and serene pond. A full size bonus room over the garage provides extra space. There is a two car garage and fenced in backyard. Enjoy the community amenities such as the pool, clubhouse, and playground. With 92 acres of protected conservation, a community dock on an 8-acre lake, and proximity to schools, shopping, dining, and Carolina Beach, this home offers the perfect blend of tranquility and accessibility.
*Pet Friendly with application fee and pet rent.
Lawn care is the responsibility of the resident.
Professional managed by Cotton Property Management, representing the owner.*
Cotton Property Management is committed to ensuring that its website is accessible to people with disabilities. All the pages on our website will meet W3C WAI's Web Content Accessibility Guidelines 2.0, Level A conformance. Any issues should be reported to bradley@cottonpropertymanagement.com. Website Accessibility Policy
